Gordon Ranch Market Place

Gordon Ranch Market Place Logo
 

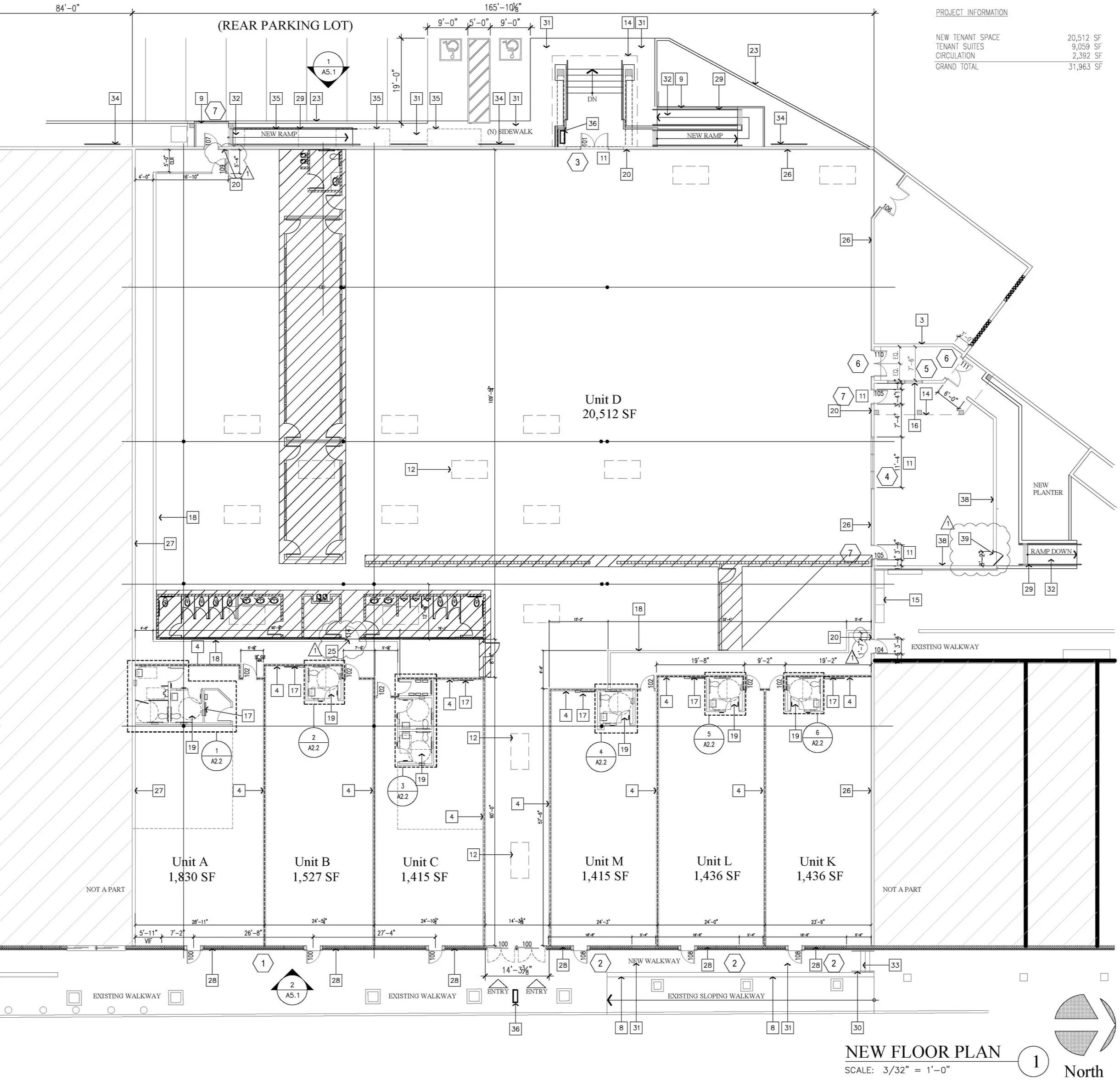
Gordon Ranch Market Place comprises several retail spaces, restaurants, and offices. Located in the heart of Chino Hills.

 

SERVICES

Roofing, Flooring, Electrical, Façade, Walls, Asphalt Paving, Painting, Plants, and Awning

 
Gordon Ranch Market Place Diagram
Gordon Ranch Market Place Diagram
Gordon Ranch Market Place Building
Gordon Ranch Market Place  Building
Gordon Ranch Market Place Building
Gordon Ranch Market Place Building

JuxtaposeJS Embed

Previous
Previous

Santa Monica College